Челябинцы выберут проект аллеи на северо-западе
09 апреля 2020 17:40
- автор Людмила Баннова
Фото: docs.google.com
Эскиз уже готов, проектировщики ждут мнения горожан.
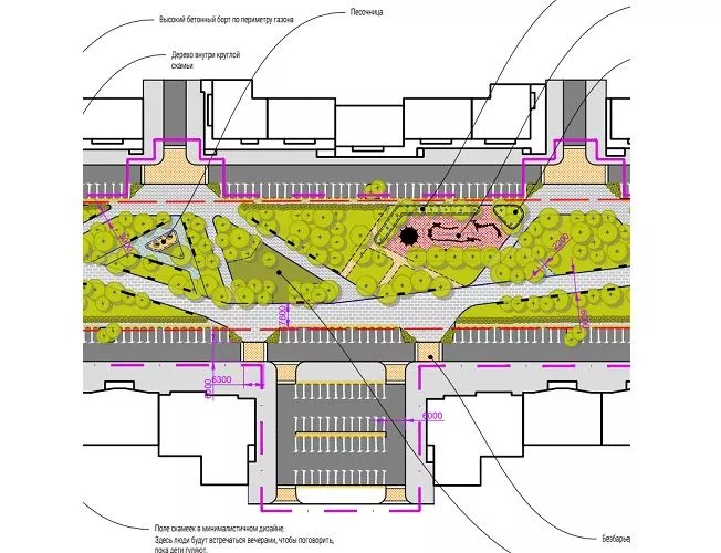
На портале «Активный житель 74» открыто обсуждение будущего внешнего вида аллеи, которая протянется между улицами Братьев Кашириных и Университетской набережной. По задумке проектировщиков, в сквере у улицы 40 лет Победы будут сделаны пешеходные дорожки, песочница, площадки со стриженым газоном, а также место для елки и большой ледяной горки. К аллее будут вести два пешеходных перехода
— У нас сейчас есть достаточно времени для того, чтобы тщательно разработать проект, - уточнил замглавы Челябинска по городской среде Александр Егоров. - Мы считаем, что основные архитектурные решения должны принимать специалисты. Но есть много частных моментов, которые видны и известны именно людям, которые там живут и часто бывают.
Для того, чтобы учесть все мнения горожан, проект размещен на обсуждение в черновом варианте.
— У нас сейчас есть достаточно времени для того, чтобы тщательно разработать проект, - уточнил замглавы Челябинска по городской среде Александр Егоров. - Мы считаем, что основные архитектурные решения должны принимать специалисты. Но есть много частных моментов, которые видны и известны именно людям, которые там живут и часто бывают.
Для того, чтобы учесть все мнения горожан, проект размещен на обсуждение в черновом варианте.